随着家居建材业的不断发展,消费者需求的不断转变,很多流行元素都在发生变化,而现代人更关注家居环境的环保问题,“颜值”和“实力”并存的门窗产品越发受消费者的热捧。
与此同时,ta们也十分注重室内与室外的紧密衔接,希望能让更多的阳光和空气进入室内,塑造一种亲近自然、融入自然的感觉。

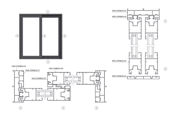
重型推拉门是环保型家居门窗,我司KDN-ZXM8816重型推拉门系列具有优良的保温性能,节能效果显著,使用可回收利用材料,符合现代家居绿色可持续发展的潮流。
实力派:抗风压、高气密、高水密、高隔音、高隔热
门窗是走进一个家庭的门面,人们对门窗的性能要求也是相当高。重型推拉门的框体强度较高,坚固耐用,抗风压变形能力强,一款极具“实力”且节约空间的重型推拉门,是不错的选择哦~

而KDN-ZXM8816重型推拉门系列,采用全新全嵌入式设计,使隔音和防风效果更佳。同时,推拉门上轨使用内防摆轮设计,密封性、防水性、隔音性、隔热性能优越,使用更安全。
开启也非常灵活,有效解决了大风把门扇吹摇晃、开启推拉时所带来的噪音烦恼,适用于客厅、阳台、厨房、房间等场合。
另外,此款重型推拉门的纱网扇采用新工艺设计,解决了纱网扇尺寸过大时碰不紧的难题,实力绝对杠杠的!
颜值控:满足不同家居风格的配搭
时下,消费者对于家居的装修风格十分注重,追求质量与美并存的产品,对于门窗产品的选择也不例外。

为迎合消费市场的需求,我们对于产品的“颜值”也是十分注重,此款产品推出五个颜色供消费者选择:波特兰金橡木、马德望红酸枝、巴黎香槟金、埃及骑士灰、苏丹古典棕。
不再是千篇一律的色调,可满足不同家居风格的配搭,包括原木家居风、中式风格、日式风格、古典风格、现代风格等均可进行搭配,让整个家居环境更个性化、多元化。
门窗,是家居生活当中十分重要的组成部分,在满足家居功能需要的同时让人拥有追求美的权利,力求创造舒适的家居环境。
颜值与实力并存的重型推拉门系列就在我们桃园铝业~